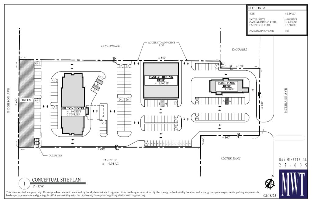
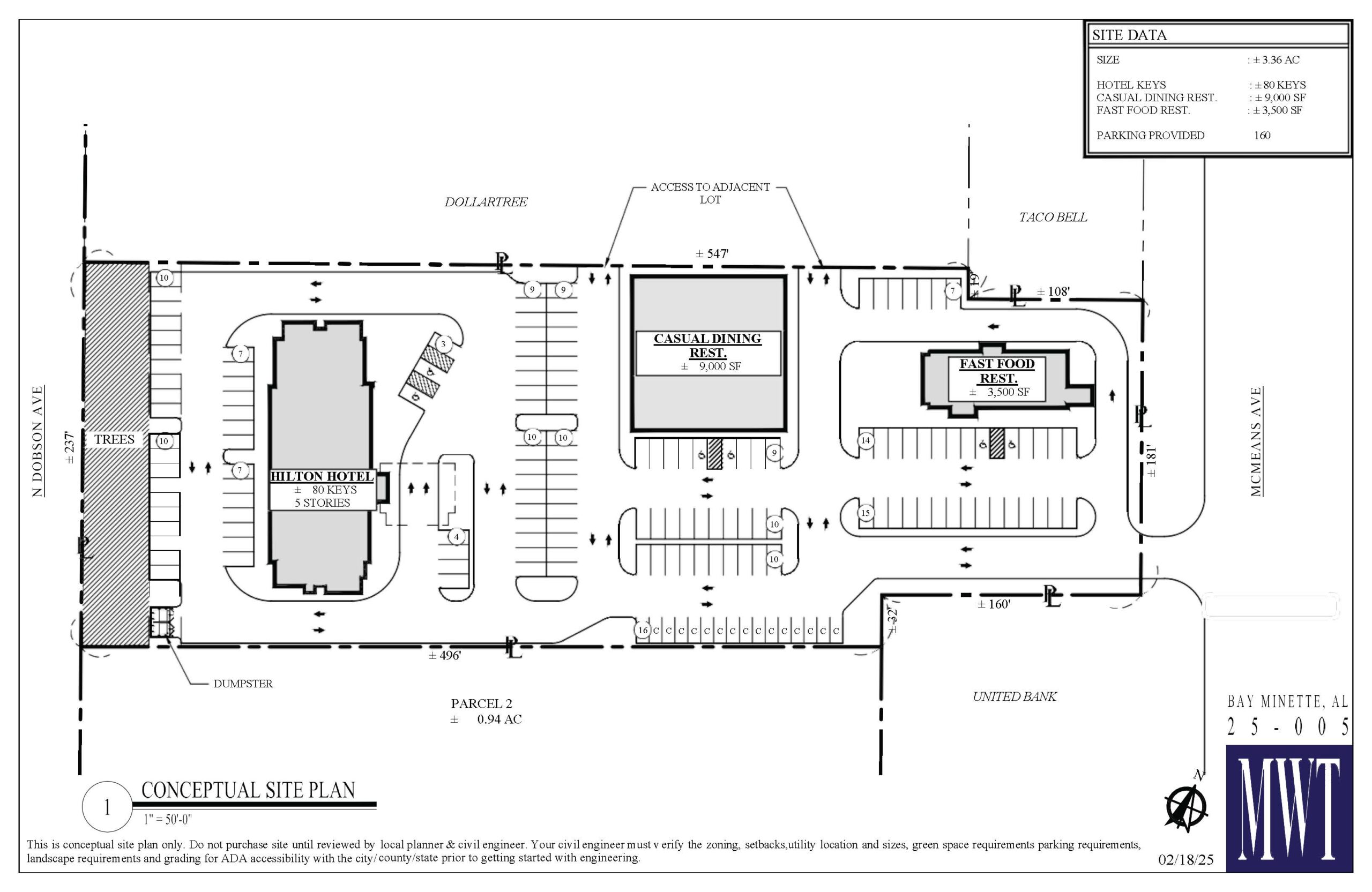
Bay Minette, Ala. – The City of Bay Minette is moving forward with an exciting redevelopment project to transform a city-owned, 4-acre parcel and existing building into a new mixed-use development. The City has agreed to sell the site formerly used as the city’s recreational center to Bay Minette Development Group, LLC. The development group plans to develop a proposed Hilton-brand hotel and two new restaurants to be announced.
This project is a direct response to the momentum of the City of Bay Minette and the rising demand for accommodations and amenities created by recent major announcements, including Novelis’ aluminum plant, Big Mike’s Steakhouse, and the upcoming Cobblestone Hotel.
“We are proud to see our city’s momentum leading to projects like this one that will serve both our residents and visitors,” said Bay Minette Mayor Bob Wills. “It’s exciting to watch new energy and opportunity flow into our community thanks to the long-term planning and regional partnerships with the Baldwin County Economic Development Alliance (BCEDA), the Baldwin County Commission, our Legislative Delegation, and others. This project has been in the works for almost a year and has come to fruition through the dedicated efforts of the City and our partners.”
The proposed Hilton-brand hotel will be developed by Bay Minette Development Group, LLC, which brings a track record of successful hospitality ventures and a strong commitment to the local community.

“Bay Minette Development Group, LLC and Herrington Realty, who will be marketing the outparcel for restaurant use, are pleased to be a part of the continued growth of the City of Bay Minette,” said Tim Herrington of Herrington Realty.
The redevelopment project is being supported through a public-private partnership model and is part of the city’s long-term strategy to revitalize the city while enhancing quality of life and visitor experience.
“This is exactly the kind of project that reflects the direction Bay Minette and Baldwin County are headed,” said Lee Johnson, Executive Vice President of BCEDA. “We’re seeing the impact of industrial recruitment ripple into all areas of our economy—creating jobs, boosting tourism, and attracting thoughtful development like this.”
Construction timelines and restaurant partner announcements are expected later this year. The City and its development partners will release additional details once the project agreement is finalized.
About Baldwin County Economic Development Alliance (BCEDA)
BCEDA is a coalition of local public and private professionals, leaders, and officials dedicated to fostering economic growth and prosperity in Baldwin County. The organization is committed to promoting Baldwin County as a premier location in the U.S. for investment and continuing to raise the quality of life in the community. For more information, visit www.baldwineda.com.